Sold

Oh, wouldn't it be lovely! Over 24 metre frontage! 3 Bedroom + Study + Rumpus! Room for the Boat & Caravan!

A wonderful rendered family home with class and appeal, simply a joy to come home to!
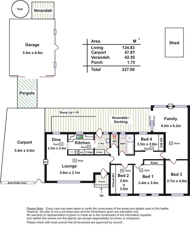
Imagine double sized rooms for bedrooms 1 & 2, a large single bedroom 3 and a good sized study. Then think of a large L-shape lounge and dine with picture windows to add to your enjoyment. Adjacent sits the updated Kitchen with loads of cupboards, upright stove including separate griller, range-hood, microwave, filter tap & direct views to the backyard to keep an eye on the children. The large rumpus/family room leads through a glass sliding door to your own covered rear verandah and deck entertaining area with cafe style clear blinds and an elevated perspective of the manicured rear yard with easy ramped access.
Huge oversized single carport with high access remote roller door and personal access door provide direct access to the rear yard and the Double Iron garage with sliding doors also with high access doors for storage for the boat or caravan or both. The garage is also provided with power, lighting and plumbed water to hand basin.
A large garden shed, solar hot water service, rainwater tank and north facing rear yard all add to the appeal, however, more surprises await the discerning buyer!
Located in easy walking distance to supermarkets, speciality shops, transport and many other facilities

Call or email to register your interest to ensure your inspection.

Features

Deck Outdoor entertainment area Water Tank Study
3 1 2 720 m2
Address 16 Tantara Street, Ingle Farm
Price SOLD
Property Type Residential
Property ID 177
Category House
Land Area 720 m2

Agent Details

Trevor Priest photo

Trevor Priest

0418 220 224
View Profile