Escape In This Peaceful Family Home

Step into a grand entrance to find an immaculate home that is sure to delight and impress.

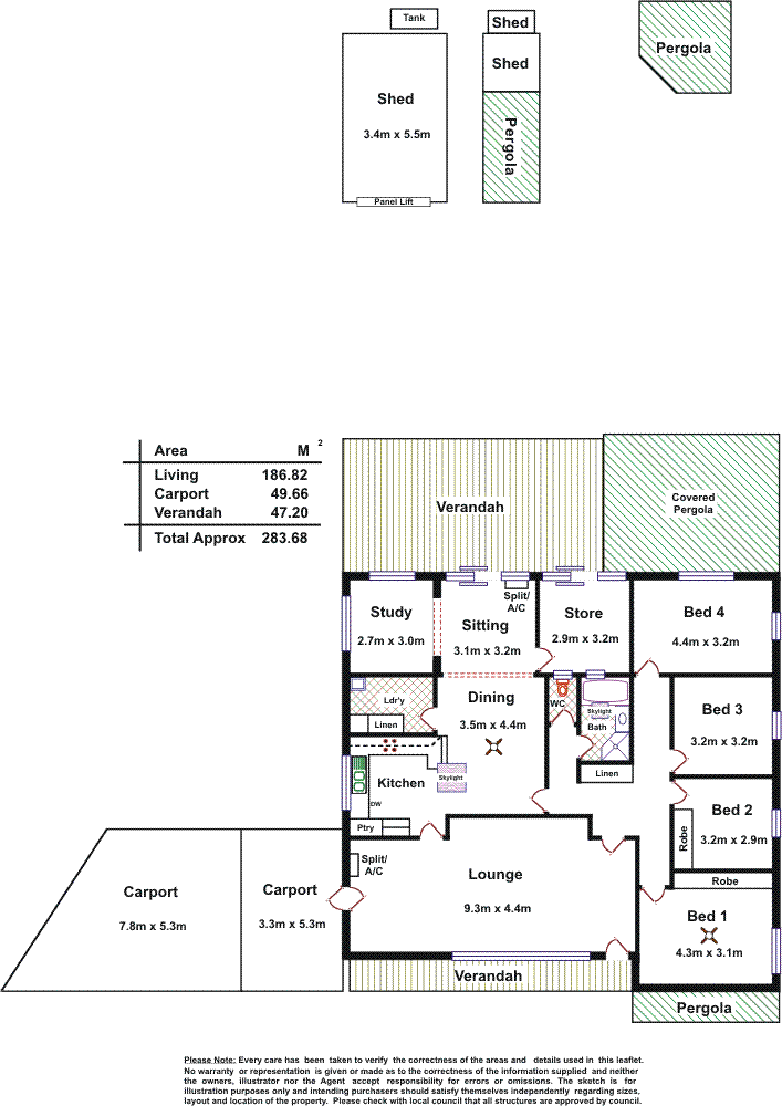
Set on a 2600sqm, with four spacious bedrooms and an extra storage room, there's a lot to love. The formal lounge feels elegant and homely, featuring floor to ceiling curtains, a raked ceiling and warm light.

Make your way into the light and bright kitchen to enjoy the spectacular view, you may even see a koala or two! The kitchen also features an under bench electric oven with separate gas cooktop, microwave provision and plenty of storage.

The family area leads out into the backyard which is a treat to nature lovers. Bask in the serenity of your own private oasis, while you listen to the soft sound of birds singing and your very own creek trickling.

Set on a quiet no through road, close to a wide variety of schools and just a short drive to Tea Tree Plaza, the location is something to be excited about.

You don't want to miss out on securing this pristine and unique home, contact Chateau Real Estate to book your private viewing on 1300 243 579

Chateau Real Estate RLA 173523

4 1 5
Address 15 Oleander Dr, Banksia Park
Price SOLD
Property Type Residential
Property ID 376
Category House

Agent Details

Trevor Priest photo

Trevor Priest

0418 220 224
View Profile